Small pleasures of life
Zeming Li, Peng Zhang
Design Studio Prof. Annette Spiro
ETH, Zürich 
Spring Semester 2022
APARTMENT BUILDING
Building Site
Eichbühlstrasse 2 at Hardplatz in Zurich. The building site is located in a residential neighborhood consisting of a majority of early 20th-century buildings and in the vicinity of traffic junction Hardbrücke. 
Task
to develop a living idea and design an 'ideal' flat floor plan, in which each inhabitation has 20 square meters on average, by examining the elementary situations of living and making everyday living becoming a spatial experience.
Urban Design
In this district, residential buildings have a strong characteristic, a two-story base store, which is an element respected in the project, which is reflected by varying slightly the volume and the geometrical proportion. The aim of the new volume means to close the yard, which is embraced by the neighboring buildings. 
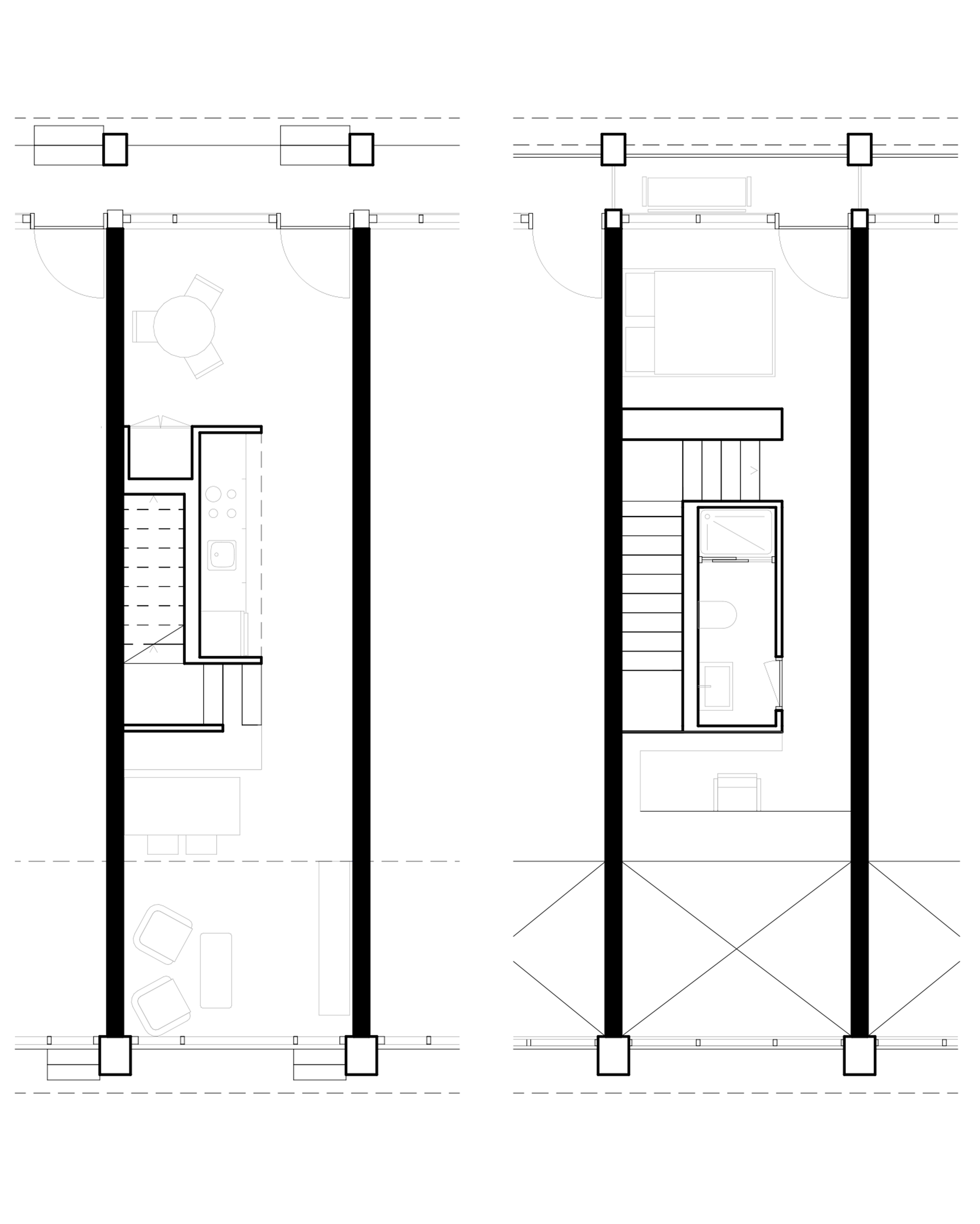
Floor plan generation
The floor plan attempts to explore an innovative form of residence within a box frame construction. By introducing several openings to the parallel sheering walls, new relationships and orientations among different functional spaces are created.
Facade Design
Considering the new building is facing on one side of the street and on another side of the yard, which is relatively private for this block, the facade design offers a difference between them while reflecting the tripartite composition from neighbors and indicating the interior construction simultaneously.
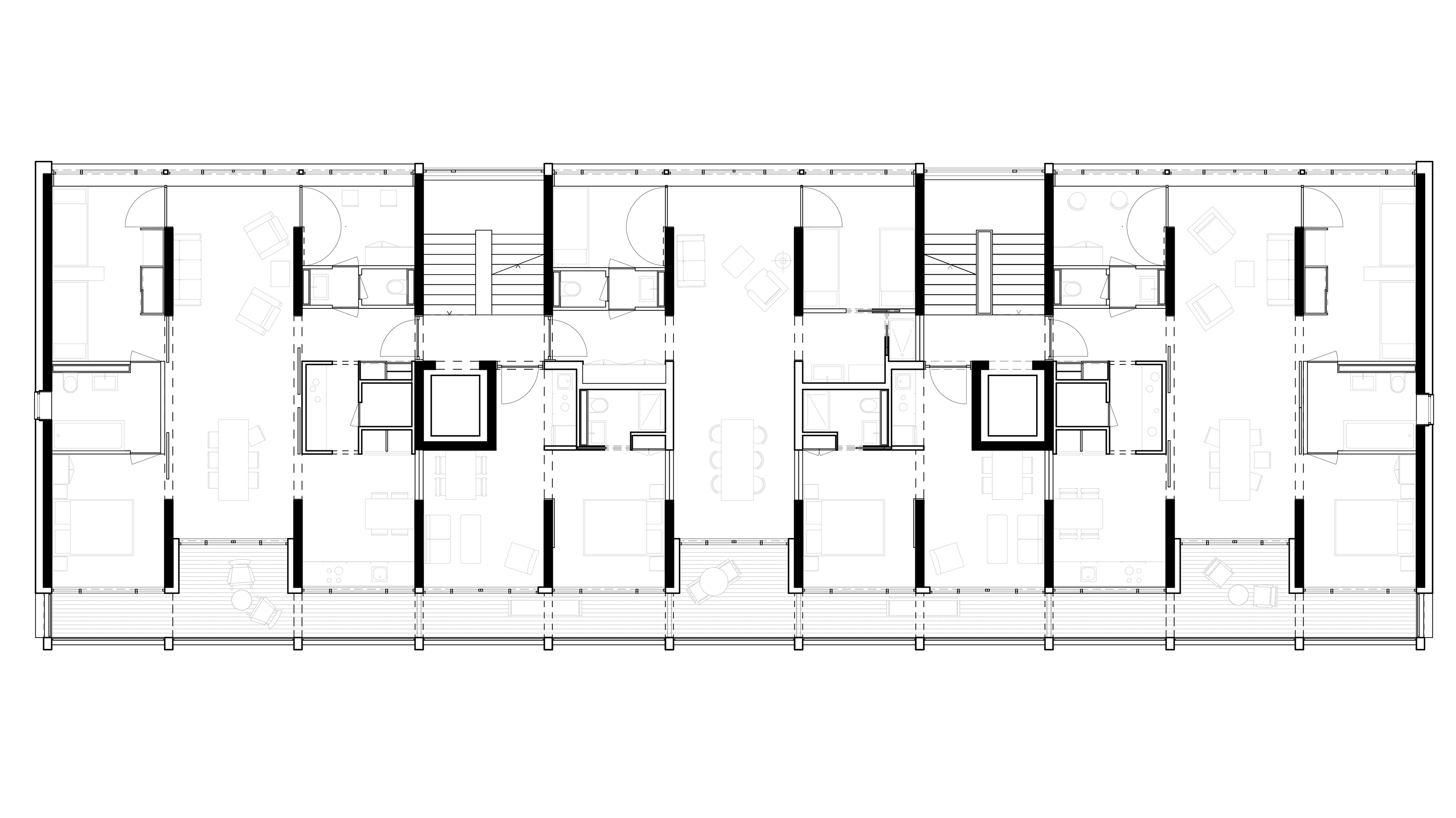
Residential typology
To generate a diversity of inhabitant groups, standard floors are filled with family apartments and studios for different sizes and the base store contents only duplexes.

You may also like

Back to Top